Casi studio

Via Faruffini, Milano

Costruire senza consumo 2012 numero 33

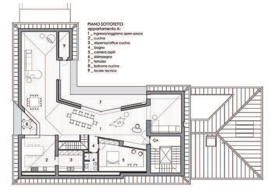
Il progetto affronta il tema del “recupero dei sottotetti ai fini abitativi” applicandosi ad un edificio...

Via Faruffini, Milano

Il progetto affronta il tema del “recupero dei sottotetti ai fini abitativi” applicandosi ad un edificio dei primi del novecento.
La profondità del corpo di fabbrica e le altezze generose dello stato di fatto hanno permesso di lavorare per sottrazione, operando dei tagli sulla copertura per creare nuove terrazze con viste controllate dalla zona giorno sul giardino.
Una nuova copertura in rame sostituisce le vecchie marsigliesi aumentando il contrasto con le terrazze in scavo poste ai due livelli di copertura, interamente rivestite in doghe di teck poste in orizzontale.
I sistemi di oscuramento e i serramenti delle terrazze sono perfettamente integrati nel sistema di rivestimento in teak, e scomparendo nello spessore della muratura mettono in diretta comunicazione le zone giorno trasformando le terrazze in vere e proprie stanze all’aperto.
Il tentativo è stato quello di interpretare la richiesta della committenza di massimizzare gli spazi disponibili, inserendo un nuovo organismo edilizio che dialogasse con l’esistente. L’intervento di recupero del sottotetto ha comportato la sostituzione dell’intero sistema portante della copertura costituito da un sistema in travi e travetti di legno con manto di copertura in tegole marsigliesi ed una nuova struttura metallica in travi in acciaio HEB che sostengono il nuovo pacchetto di copertura.
Quest’ultimo è costituito da un rivestimento in rame posato secondo la tecnica dell’aggraffatura a listello che poggia su di un pannello isolante in poliuretano espanso e un doppio assito in abete da 25 mm; tra la lamiera di rame e l’assito in legno è stato posizionato un separatore meccanico in grado di creare una microventilazione per eliminare la formazione di condensa.
Le murature perimetrali sono costruite mediante l’utilizzo di termolaterizio da 24 cm al quale è stato applicato un ulteriore strato isolante con funzione “ cappotto” da 6 cm.
I terrazzi presentano un rivestimento sulle pareti e sul pavimento in doghe di teck, che funziona anche da mascheratura del sistema di oscuramento dei serramenti anch’esso rivestito in doghe di teck; il pavimento è posato su struttura in alluminio. Internamente le pareti ed i soffitti sono rivestite in lastre di cartongesso per permettere l’alloggiamento delle dotazioni impiantistiche e l’integrazione con i lucernari in copertura.


Impresa esecutrice: Aurora finiture e restauri Srl
Serramenti: Veragouth sa CH
Committenza: Privato
Realizzazione:  2009-2011
Progetto architettonico: Andrea Viganò, Carlotta Garretti con Bianchi Viganò Associati coll. Cinzia Barbaglia


Ti è piaciuto l'articolo?
Autore: Andrea Viganò, Carlotta Garretti

TAGS: intervento, recupero

© 2026 - Assimpredil Ance - Credits - Privacy